產品導航
Product navigation
當前位置:首頁 > 公司新聞 > Z型提升機防卡斗技術改進及實用方式
Z型提升機防卡斗技術改進及實用方式
發布人:新鄉天太斗式提升機廠家 發布時間:2020-02-04
【背景技術】本技術涉及一種斗提機系統,尤其涉及一種防卡斗的Z型提升機系統,原有系統,容易出現在Z型斗提機拐彎處卡斗的現象。主要原因有三個方面:第一、入料不均勻,下料突然增多,將Z型斗式提升機料斗打翻了 ;第二、提升機料斗傾斜或損壞;第三、料斗倒料后,沒有自然回正。上面三個原因都會促使料斗在Z型提升機拐彎處卡住。卡斗不僅會造成料斗損壞,嚴重時一片料斗都報廢,甚至鏈條斷裂,而且不方便檢修,停機檢修時間長,影響產量。
因此,需要提供一種新的技術方案來解決上述問題。

【技術內容】
本技術要解決的技術問題是提供一種防卡斗的Z型提升機系統。
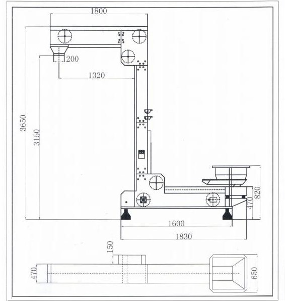
為解決上述技術問題,本技術的一種防卡斗的Z型提升機系統,它包括提升機軌道、提升機電機、振動篩、料斗、鏈條、多個接近開關和觸摸屏,所述提升機軌道一端上側開有進料口,所述提升機軌道另一端下側開有出料口,所述振動篩位于進料口正上方,所述料斗裝在料條上,所述提升機電機帶動鏈條運動,多個接近開關為接近開關1、接近開關11、接近開關II1、接近開關I V、接近開關V和接近開關VI,所述接近開關I安裝于進料口右側,所述接近開關II安裝于提升機左下拐彎處的上端,所述接近開關III安裝于提升機左上拐彎處右側,所述接近開關IV安裝于提升機出料口的左側,所述接近開關V安裝于提升機右上拐彎處右側,所述接近開關VI安裝于提升機右下拐彎處的左側,所述觸摸屏上安裝有多個用于故障報警顯示的接近開關指示燈。
所述提升機軌道的形狀為Z字型。
本技術的有益效果:一方面能夠提前發現料斗是否正常,及時報警停機,避免料斗運行到Z型提升機拐彎處卡斗;另一方面通過觸摸屏上顯示的報警指示燈確定了料斗出現問題的位置,便于快速查找出故障進行檢修。
【附圖說明】
圖1為本技術的結構示意圖。
[0010]其中:1、接近開關I,2、接近開關II,3、接近開關III,4、接近開關I V,5、接近開關V,6、接近開關VI,7、料斗,8、鏈條,9、提升機軌道,10、提升機電機,11、振動篩,12、進料口,13、出料口,14、觸摸屏,15、接近開關指示燈。
【實施方式】
為了加深對本技術的理解,下面將結合實施例和附圖對本技術作進一步詳述,該實施例僅用于解釋本技術,并不構成對本技術的保護范圍的限定。
如圖1所示,本技術的一種防卡斗的Z型提升機系統,它包括Z型的提升機軌道9、提升機電機10、振動篩11、料斗7、鏈條8、多個接近開關和觸摸屏14,提升機軌道9 一端上側開有進料口 12,提升機軌道9另一端下側開有出料口 13,振動篩11位于進料口 12正上方,料斗7裝在料條8上,提升機電機10帶動鏈條8運動,多個接近開關為接近開關I1、接近開關Π2、接近開關1113、接近開關IV4、接近開關V5和接近開關VI6,接近開關Il安裝于進料口 12右側,接近開關112安裝于提升機左下拐彎處的上端,接近開關III3安裝于提升機左上拐彎處右側,接近開關IV4安裝于提升機出料口 13的左側,接近開關V5安裝于提升機右上拐彎處右側,接近開關VI6安裝于提升機右下拐彎處的左側,觸摸屏14上安裝有多個用于故障報警顯示的接近開關指示燈15。
上述文字中“提升機左下拐彎處”、“提升機左上拐彎處”、“提升機右上拐彎處”和“提升機右下拐彎處”,指的是相對于提升機輸送物料時的運行方向。
在Z型的提升機軌道的進料口 12和出料口 13處安裝接近開關以及在提升機拐彎處的軌道上安裝接近開關,當料斗出現問題時會在接近開關的探測范圍內,接近開關發出信號,提升機電機停止運行,觸摸屏上顯示故障位置,防止了料斗運行到Z型提升機拐彎處卡斗。
【實用要求】
1.一種防卡斗的Z型提升機系統,其特征在于:它包括提升機軌道、提升機電機、振動篩、料斗、鏈條、多個接近開關和觸摸屏,所述提升機軌道一端上側開有進料口,所述提升機軌道另一端下側開有出料口,所述振動篩位于進料口正上方,所述料斗裝在料條上,所述提升機電機帶動鏈條運動,多個接近開關為接近開關1、接近開關I1、接近開關II1、接近開關I V、接近開關V和接近開關VI,所述接近開關I安裝于進料口右側,所述接近開關II安裝于提升機左下拐彎處的上端,所述接近開關III安裝于提升機左上拐彎處右側,所述接近開關IV安裝于提升機出料口的左側,所述接近開關V安裝于提升機右上拐彎處右側,所述接近開關VI安裝于提升機右下拐彎處的左側,所述觸摸屏上安裝有多個用于故障報警顯示的接近開關指示燈。
2.根據權利要求1所述的一種防卡斗的Z型提升機系統,其特征在于:所述提升機軌道的形狀為Z型。
【技術摘要】
本技術公開了一種防卡斗的Z型提升機系統,它包括提升機軌道、提升機電機、振動篩、料斗、鏈條、多個接近開關和觸摸屏,提升機軌道一端上側開有進料口,提升機軌道另一端下側開有出料口,振動篩位于進料口正上方,料斗裝在料條上,提升機電機帶動鏈條運動,多個接近開關為接近開關I、接近開關II、接近開關III、接近開關IV、接近開關V和接近開關VI,觸摸屏上安裝有多個用于故障報警顯示的接近開關指示燈。在Z型的提升機軌道的進料口和出料口處安裝接近開關以及在提升機拐彎處的軌道上安裝接近開關,當料斗出現問題時會在接近開關的探測范圍內,接近開關發出信號,提升機電機停止運行,觸摸屏上顯示故障位置,防止了料斗運行到Z型提升機拐彎處卡斗。
本文標簽: Z型提升機 Z型斗提機 Z型斗式提升機 Z形提升機
版權說明:如非注明,本站文章均為新鄉天太斗式提升機廠家原創,轉載請注明出處和附帶Z型提升機防卡斗技術改進及實用方式本文鏈接。
下一篇:斗提機配重桿技術特征及實用效果

